We will present the performance, safe operation methods, and technical පරාමිතයs of KYN61-40.5 මධ් යම වොල්ටේජ් ස්විච්ජුර්
ආදර්ශ සහ අර්ථය
K Y N 61 - 40.5 / □ - □
└─Rated Breaking Short Circuit Current (KA.)
└───දැනට භාවිතය (A.)
└─────── Rated V.oltage (KV.)
└────────── design සීරිය අංකය
└ ───────────── indoors
└────────────── Removal type
└─────────────── Metal armor
Use environmental conditions
The upper limit of ambient temperature is 40°C, and the average measured value within 24 hours does not exceed 35°C.
Lower limit -15°C:
A.ltitude: no more than 1000 meters above sea level;
Relative humidity: daily average not more than 95%, monthly average not more than 90%;
Earthquake intensity: no more than 8 degrees;
Water vapor pressure: the daily average does not exceed 2.2kPa, and the monthly average does not exceed 90%.
තාක්ෂණික පරාමිතීන්
Main technical පරාමිතයs of vacuum මාරුකරු
සීරිය අංකය | ව් යාපෘතිය | Dimensions | පරාමිතය |
1 | වැටීම | KV. | 40.5 |
2 | Lianchang | A. | 12501600 2000 |
3 | ලකුණු ප් රමාණය | හැස්ස් | 50 |
4 | කෙටි කාලීනීම | KA. | 20 25 31.5 |
5 | වර්තමාන සිටීම | KA. | 50 63 80 |
6 | rated power frequency withstand voltage | KV. | 95/1 min |
7 | අකුණු කම්පනය වැදගත් | KV. | 185 |
8 | Rated short circuit duration | S | 4 |
9 | ආරක්ෂක මට්ටම් | IP3X |
Main technical පරාමිතයs of vacuum circuit breaker
සීරිය අංකය | ව් යාපෘතිය | Weaving position | පරාමිතය |
1 | වැටීම | KV. | 40.5 |
2 | ලකුණු ප් රමාණය | හැස්ස් | 50 |
3 | rated power frequency withstand voltage | KV. | 95/lmin |
4 | අකුණු කම්පනය වැදගත් | KV. | 185 |
5 | දැනට භාවිතය | A. | 12501600 2000 |
6 | කෙටි කාලීනීම | KA. | 20 25 31.5 |
7 | Rated short-circuit breaking current | KA. | 20 25 31.5 |
8 | වර්තමාන සිටීම | KA. | 50 63 80 |
9 | Rated short circuit duration | ms | 4 |
10 | Opening time | ms | 30 S 1 W 60 |
11 | Hehe time | ms | 50 & t W 】00 |
12 | 88 The number of වේලාව the current is interrupted in a fixed short circuit | වේලාව | 20 |
13 | Mechanical life | වේලාව | 10000 |
The main technical පරාමිතයs of spring operation machinery
නම | එකක | numeric value | |
වාදනය කළ ක් රියාකාරී වොල්ටෙජ් | Split coil | V. | DC220/110 A.C220/110 |
Closing coils | |||
Rated operating current | Split coil | A. | O.96(22OV.)1.O5I11OV.) |
Closing coils | |||
Energy storage motor power | W | 230 | |
Energy storage motor rated voltage | V. | DC220/110 A.C220/110 | |
Energy storage time | S | w 12 |
Structural characteristics of මාරුකරු
ස්විච්ජයර් නිර්මාණය කර තිබෙන්නේ GB3906-1991 සහ IEC298 ප් රමිති අනුගමනය කර තිබෙන යහපත් ස්විච්ජයරය සඳහා. මුළුමනින්ම සම්පූර්ණ කොටස් දෙකකින් සම්බන්ධයි. කැබිනි ස්විච්ජියර් එකේ අභ් යන්තර කොටස චාරිකා කාමරයක් කේබල් කාමරයක් වැටුමේ ආරක්ෂාවේ මට්ටම IP3X තැනට යනවා, එක් කාමරය අතර ආරක්ෂා කරන්නේ IP2X සහ සියලුම යහපත ස්ථානයක් ස්ථිරවම පාලනය කර තිබෙනවා.
1. Enclosure and partition
ස්විච්ජර් එකේ ශෙල් සහ කොටස් එකතුවෙලා සීතල යෙදුම් පාලක සමග CNC යන්ත් රයෙන් ක් රියාත්මක වුණේ පස්සේ ඉස්. ඉතින්, එකතු කරපු ස්විච්ජියර් එකට පුලුවන් හැඟීම්වල සමානකම තහවුරු කරගන්න. ස්විච්ජියර් එක බෙදීලා තියෙන්නේ චාර්ය බ් රේකර් කාමරයක, ප් රධාන බස්බාර් කාමරයක්, කේබල් කාමරයක් හා ප් රේරිත උපකරණ කාමරයක්.
2. Handcart
අත් වාර්තා වලට බෙදුන්න පුලුවන් චාරිකා කාර් රාට් වලට, වෘල්ට් රෝග ෆ් රාම්ස් වාර්තා වලට, මීටර් අත්පොත වාර්තා වලට, තනියම අත් වාර්තාව, ඇවිත්. අරමුණට අනුව
කාට්ටුවට පරීක්ෂණය / තනියම ස්ථානයක් තියෙනවා සහ කැබිනට් එකේ වැඩකරන ස්ථානයක්, සෑම ස්ථානයක්ම සුදුසු රිදී උපකරණයක් ලබා තිබෙනවා. ස්ථාන දෙකක්.
3. Circuit breaker compartment
ස්ථිර පාර්ථක ස්ථාපනය කර තිබෙනවා. පරීක්ෂණ ස්ථානයේ වැඩකරන ස්ථාන අතර චාරිකා බිමට යන විට, තනියම තැනැත්තා ස්වයංක් රීයව විවෘත වෙයි හෝ වහලා වහලා. ඒක තහවුරු කරන්නේ නැති බව.
සිරුරට අල්ලන්න. අත් වාර්තාවය කැබිනි ඒ වගේම කාර්යාට් එකේ ක් රියාකාරකම් ලකුණු.
4. Busbar chamber
ප් රධාන බස් එක එක් ස්විච්ජයර් එකෙන් අනිත් එකට යනවා ශාඛා බුස්බාර් එකක් සහ ස්ථාන සම්බන්ධයෙන්, කැබිනි සියළුම බස්බාර් වලින් සංඛ් යාවක් ලබා දෙනවා.
5. Cable compartment
PT, ground switch, surge arrester and multiple cables can be installed in the cable room.
6. Relay room
පාලනය, ආරක්ෂාව, මීටර්, දර්ශන උපකරණ වැනි ද් රව් ය සංඛ් යාව, සජීවීන් නිරීක්ෂණය දර්ශන, ඇයි.
7. Interlock device
The මාරුකරු has a reliable interlock device to ensure the safety of operators and equipment:
![]() | ![]() | ![]() |
| Promote interlocking installation | KYN61-40.5(Z) A.rmored Handcart Cabinet | Grounding switch |
මුද් රණ ස්වේච් එක විවෘත ස්ථානයේ සිටින විට, අත්පොරටුව පරීක්ෂණය / තනිකම ස්ථානය සිට ක් රියාකාරී ස්ථානයට ගෙනිය හැකියි: පස්සේ දොර අරින්න බෑ
කැබිනට් එකෙන් සම්පූර්ණයෙන්ම එලියට ඇදලා ගත්ත විට නැත්නම් පරීක්ෂණය තැනැත්තාව දක්වන විට කැබිනට් එකේ පරීක්ෂණය දක්වන්න අගුළු හා අගුල අරින්න, භූමික ස්වච් වහන්න පුළුවන්; වාර්තාව වැඩ කරන ස්ථානයේ සිටින විට, මූලස්ථානය වහන්න බැහැ. එය වැරදි ස්විච් එකේ වැරදි සම්බන්ධ වීම වැළැක්වියි ස්විච් එක වසා තැනක තියෙනවා.
චාර් රීකර් රාට් එකේ පරීක්ෂණය / තනිකම තත්වය හෝ වැඩ කරන ස්ථානයේ හැටියට පමණි: ඒ වගේම චාර් රීකර් එක නමට පස්සේ, අත්පොටුවට යන්න බෑ, ඒකෙන් සජීවී බොරුව වලංගු කරනවා අහම්බෙන් තල්ලු කිරීමට සහ චාරිකා බිමට ඇදලා. සෑම කැබිට් එක අතර විදුලි අතර ස්ථානය කරන්න පුළුවන්.
Grounding device
In the cable room, there is a separate 6x50mm2 grounding busbar, which can run through the adjacent cabinets and have good contact with the cabinets.
Main wiring scheme
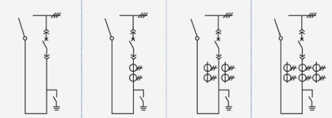
ස්විච්ජයර් එකේ ප් රධාන වයර ක් රමය සඳහා සාමාන් ය ස්ථානය 27ක් භාවිත කරනවා, ඒකට පරිශීලකයන්ගේ අවශ් යතාව, කේබල් ඇතුළත් කිරීමට සහ පිටවෙන්න, ඔළුව ඇතුළත් කිරීම සහ පිටවීම්, සම්බන්ධය සහ මැන, ආරක්ෂාව, ඇයි.
Scheme number | 01 | 02 | 03 | 04 | |
Main wiring diagram | ![]() | ||||
Main electrical equipment | දැනට භාවිතය | 125,016,002,000 | |||
New circuit driver ZN85-40.5 | 1 | 1 | 1 | 1 | |
Current transformer LDBJ8(9)-35 | 2 | ||||
Grounding switch IN22-40.5/31.5 | 1 | 1 | 1 | 1 | |
use | Overhead out | Overhead out | Overhead out | Overhead out | |
Scheme number | 05 | 06 | 07 | 08 | |
Main wiring diagram | ![]() | ||||
Main electrical equipment | දැනට භාවිතය | 125,016,002,000 | |||
New circuit driver ZN85-40.5 | 1 | 1 | 1 | 1 | |
Current transformer LDBJ8(9)-35 | 2 | 3 | |||
Grounding switch IN22-40.5/31.5 | 1 | 1 | 1 | 1 | |
use | cable outlet | cable outlet | cable outlet | cable outlet | |
Scheme number | 09 | 10 | 11 | 12 | |
Main wiring diagram | ![]() | ||||
Main electrical equipment | දැනට භාවිතය | 125,016,002,000 | |||
New circuit driver ZN85-40.5 | 1 | 1 | 1 | 1 | |
Current transformer LDBJ8(9)-35 | 1 | 2 | 3 | ||
use | Left (right) contact | Left (right) contact | Left (right) contact | Left (right) contact | |
Scheme number | 13 | 14 | 15 | 16 | |
Main wiring diagram | ![]() | ||||
Main electrical equipment | දැනට භාවිතය | 125,016,002,000 | |||
New circuit driver ZN85-40.5 | |||||
Current transformer LDBJ8(9)-35 | 1 | 2 | 3 | ||
use | contact | contact | contact | contact | |
Scheme number | 17 | 18 | 19 | 20 | |
Main wiring diagram | ![]() | ||||
Main electrical equipment | දැනට භාවිතය | 125,016,002,000 | |||
New circuit driver ZN85-40.5 | 1 | 1 | 1 | 1 | |
Current transformer LDBJ8(9)-35 | 1 | 2 | 3 | ||
use | Cable in | Cable in | Cable in | Cable in | |
Scheme number | 21 | 22 | 23 | 24 | |
Main wiring diagram | ![]() | ||||
Main electrical equipment | දැනට භාවිතය | 125,016,002,000 | |||
New circuit driver ZN85-40.5 | 1 | 1 | 1 | 1 | |
Current transformer LDBJ8(9)-35 | 1 | 2 | 3 | ||
use | Overhead in | Overhead in | Overhead in | Overhead in | |
Scheme number | 25 | 26 | 27 | 28 | |
Main wiring diagram | ![]() | ||||
Main electrical equipment | දැනට භාවිතය | 125,016,002,000 | |||
V.oltage transformer LDX9-35 | |||||
Fuse XPNP-35 | 2 | 3 | 2 | ||
Surge arrester YH5WS-51/134Q | 3 | ||||
| පරිවර්තකය SCB9-50-35/0.4 | 1 | ||||
use | V.oltage transformer | V.oltage transformer | Station usage changed | ||
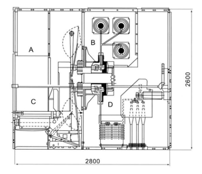
Dimensions and schematic diagram of මාරුකරු structure
![]() | ![]() |
| Dimensions (WxDxH): 1400x2800x2600 | Schematic diagram of the structure of the මාරුකරු A. relay instrument room B bus room C circuit breaker room D cable |
Switch cabinet installation
1. Height of electrical room: ≥4500mm:
2. Distance from the back of the cabinet to the wall: ≥1500mm;
3. Flatness of foundation frame: ≤1mm/m?;
4. The part of the foundation embedded channel steel above the ground shall not exceed 3mm;
5. It can be fixed on the foundation by bolting or welding:
6. The weight of the මාරුකරු is about 1800Kg:
7. Width of the මාරුකරු operation corridor (single row): ≥3000mm, double row (face to face) ≥ 4000mm.
නිෂ්පාදය consistency
the main scheme number of the secondary line, the single bus system diagram, the arrangement diagram and the layout diagram;
Secondary circuit electrical schematic diagram and terminal arrangement diagram:
the model, specification and quantity of electrical components of the මාරුකරු;
Specifications and materials of main busbars and branch busbars:
Name and quantity of spare parts and spare parts:
Special requirements are agreed with the manufacturer.
නිෂ්පාදන තාක්ෂණය දියුණු වීම හේතුව, සියලුම දත්ත තහවුරු කරගනිමින් අලුත්ම තාක්ෂණික දෙපාර්තමයෙන්, එතන වෙනස් වෙන්න පුලුවන්.
මඟ පෙන්වීම්
The user should provide the following technical information when ordering:
ප් රධාන වැරදි ක් රමය, අරමුණ හා තනි වයිරස් පද්ධතිය සටහන: අනුකරණ වෘත්තිය: කෙටි චාරිකා කැඩීම: බෙදාහරින කාමර තෙරූප චිත් රකෘතිය හා ස්විච්ජියර් සැකසුම් සහ සැකසුම් චිත් රකෘතිය,
Indicate the specifications of the inlet and outlet cables.
Requirements for control, measurement and protection functions of මාරුකරු and other requirements for latching and automatic devices.
මාකල්, විශේෂත්වය සහ ප් රමාණය ස්විච්ජර් එකේ ප් රධාන විද් යාත්මක අංගය. අතර ස්විච්ජියර් වගේ! නැත්නම් එන කැබිනි සහ බස්බාර් පාලමේ පාලම සහ බස්බාර් පාලමේ පාලමේ අවස්ථා වැනි විශේෂ අවශ් යතා සපය යුතුයි ඩ්.
When මාරුකරු is used in special environments, it should be detailed at the time of ordering.
Other special requirements.
Schematic diagram of the installation of මාරුකරු

