We will present the performance, safe operation methods, and technical parameters of XGN2-12 මධ් යම වොල්ටෙජ් ස්විච් චු
Scope of application
XGN port-12 පෙට්ටි වර්ගය වැසූ ලෝහ වැසූ ස්විච්ජියර් (රණ්ඩ ජාල කැබිනට් ලෙස හැඳින්වී) A.C 50 Hz, 10KV ජාලයට සුදුසුයි විවේකයක් සහ කෙටි චාරිකාවක් විදිහට, මේ මුදු ජාල කැබිනට් එකේ අත්අඩංගු සහ විද් යාත්මක ක් රියාත්මක වන්නේ ලෝඩ ස්විච් එක් කරන්න, පිරිසිදු ස්වච් හා තනිකම ස්විච් එකේ තත්වයක් මේ කැබිනි ඒ වගේම විශ්වාසවන්ත "පහ වැරදි කිරීම" ක් රියාවක් තියෙනවා.
Use environmental conditions
The upper limit of ambient temperature is 40°C, and the lower limit is -25°°C;
The altitude does not exceed 1000m;
දිනපතා සාමාන් ය ගුවන් සාමාන් ය සාමාන් ය 95%ට වඩා වැඩි නොවේ, මාස සාමාන් ය 90%ට වඩා වැඩි නොවේ; දිනපතා වතුර සාමාන් ය සාමාන් ය 2.2x10-3Mpaට වඩා වැඩි නෑ, මාස සාමාන් ය 1.8 × 10-3Mpaට වඩා වැඩි නෙමෙයි;
The surrounding air is not corroded or obviously polluted by combustible gases and water vapors;
No regular violent vibrations.
ආදර්ශ සහ අර්ථය
XGN□-□-□-□/□-□
└──Rated Thermal Stable Current (KA.)
└──දැනට භාවිතය (A.)
└──Operation method (J spring operation D electromagnetic operation.)
└── One plan number
└──වැටීම
└──Design සීරිය අංකය
└──Indoors
└──Fixed
└──Box type
Use environmental conditions
◆Upper limit of ambient temperature 40°C lower limit -25°C (indoor):
◆A.llocation 1000m;
( වතුර උස මීටර් 1000ට වැඩි වෙලාවට, DUT593-1996 වල සාධාරණ ක් රමයට අනුව එය ක් රියාත්මක කරයි. චැච්ජයර් ");
◆The daily average of relative humidity is not greater than 95%, and the monthly average is not greater than 90%:
the intensity of ground tremors does not exceed 8 degrees;
◆ No fire, explosion hazard, serious pollution, chemical corrosion and violent perturbation place.
The main technical parameters of the මාරුකරු
සීරිය අංකය | ව් යාපෘතිය | එකක | data |
1 | වැටීම | KV | 3、6、10 |
2 | Maximum operating voltage | KV | 3.5、8.9、11.5 |
3 | දැනට භාවිතය | A. | May-00 |
4 | Rated breaking current | KA. | 16.20、31.5、40 |
5 | Rated Short Circuit Engagement (Rated Short Circuit Off Current) | KA. | 40、50、80.100 |
6 | Rated short-circuit thermal stabilization current | KA. | 16.20、31.5、40 |
7 | Rated for thermally stable current | KA. | 40、50、80、100 |
8 | Rated thermal settling time | s | 4 |
9 | ආරක්ෂක මට්ටම් | IP | IP2X |
10 | Busbar system | - | Single busbar, next to the single busbar |
11 | How it works | - | Electromagnetic type, spring energy storage type |
12 | Dimensions (width, × depth, × height). | Mm. | 1100×1200×2650 (below 1000A.). |
13 | weight | kg | 1000 |
Structure and anti-error device
structure
කැබිනි ඒ වගේම කැබිනි ඒ වගේම කැබිනට් එකේ ප් රධාන සංගීත ක් රියාත්මක වන ජනලය හා ප් රධාන ආලෝකය සොයාගත හැකියි. ස්විච්ජර් එකේ තාක්ෂණික ක් රියාත්මක කරන්න, ප් රධාන කොටස දිගටම විසඳුමන ස්විච් නැවත නිර්මාණය කරලා තියෙනවා.
කැබිනි දොරට සම්බන්ධ කරගන්න පුළුවන් සංඥා ප් රවාහනය, සංඥා භාණ්ඩ, සංඥා, ආලෝක, හුවමාරුව ස්පාදනය සහ මෙහෙයුම කාමරය, පිටිපස්සේ බස්බාර් කාමරය, පහළ කොටස තමයි කේබල් කාමරය, පරිශීලකයාට පහසුවෙන් වයරය පුලුවන්. ඉදිරියේ චාර් රීකර් කාමරය වන්නේ ස්විච්ජයර් රැකගැනීම පහසුවෙන්. කැබිට් එකේ අභ් යන්තර ක් රමය 1 වන පින්තූර 2 හා නිෂ්පාදනයේ අත්පොළ තුළ පෙන්වනවා.
Error prevention device
"මරකම පහක්" ක් රියාකාරිත්වය වන්නේ: වැරදි සම්බන්ධතාවය හා චාරිකා බිමට වැරදි සම්බන්ධ වීමයි; වැරදි හඳුනාගැනීම සහ වැරදි සම්බන්ධ ස්විච් වලංගු කිරීම වැරදි කරන්න; ස්වයංක් රීය වැළැක්වීම සහ භූමි ස්විච් වලංගු කරන්න; පොළොව විවෘත කරමින් වසා වන විට ශක්තිය වැළැක්වීමට වැළකීම
මෙම ස්විච්ජයර් නිර්මාණය කරන්නේ ක් රියාකාරකම් අගුළු ක් රමය, වරද විරෝධී උපකරණය සම්බන්ධයි, ඩිස්ක්, පැනල්, අගුළු තට්ටු, අඩංගු හා සම්බන්ධ කණ්ඩායමක්, සම්පූර්ණ ක් රියාකාරකම්, සරල හා ලේසියි මෙහෙයුම, ඉතින් ' වැළැක්වීම් පහක්":
(1) Control switches (KW switches) with red and green plates are used in circuit breaker schemes to prevent misdisconnection and misclosing of circuit breakers;
(2) චාරිකා බිමට සම්බන්ධ වීමට පස්සේ විතරයි, කුඩා අත්කරණය " වැඩකරන" ස්ථානයෙන් එළියට එළියට දකුණට දකුණු දෙකකට දාන්න පුලුවන්; තනිකම ස්වච් එක් වෙන්න හා තනියම වැළකීම ලෑච් එක සහ අගුළු කිරීමේ විශ්වාසවන්තකම දෙකක් වැරදි වැරදි කිරීමේ ක් රියාකාරකම් තිබෙනවා, කුඩා අත්සන් අඩංගු තත්වය "අසංස්කරණය හා අගුල" ස්ථානයේ සිටින විට, එය ඉහළ සහ පහළ තනිකම ස්විච් පමණයි බෙදෙයි, ඒ වගේම චාරිකා බිමට වහන්න බැහැ, චාරිකා බිමට වැළැක්වීමෙන් වැළකීම
(3) චාර් රීකර් සහ ඉහළ හා පහළ තනියම ස්වච් වසා තත්වයක සිටින විට, කුඩා අත්කරණය " වැඩ කරන" ස්ථානයේ සිටින විට , ඉස්සරහ සහ පිටිපස්සේ දොරවල් විවෘත කරන්න බෑ
(4) ඉහළ හා පහළ තනිකම ස්වභාවය විවෘත වන විට, බ් රිතාන් ය ස්වච් වහන්න බැහැ, ඒ වගේම කුඩා අත්කර්මය තැනැත්තා "බාධකම" ස්ථානය දක්වන්න බෑ, ජීවත් වෙන්න පුලුවන්
(5) පෘථිවිය ස්වච් විවෘත කර නැත්නම්, ඉහළ සහ පහළ තනිකම ස්වේච් වසා නොහැක, ඒකෙන් සම්බන්ධ ස්වේච් එක වැරදි වයිරය වැසෙන එකෙන් වලංගු වෙන්න පුළුවන්.
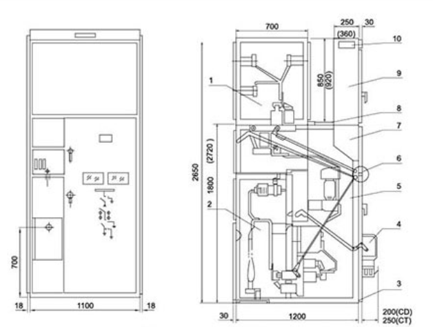
XGN□ - 12/07D outline (Fig. 1)

1. Busbar room 2. Cable room 3. Grounding bus 4. Electromagnetic (spring) mechanism 5. New circuit device room
6. Manual operation and joint sales mechanism 7. Operation chamber 8. Pressure release channel 9. Instrument room 10. Small bus terminal
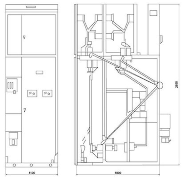
XGN-12 (bypass cable outlet) outline (Fig. 2)

Dimensions installation drawing


